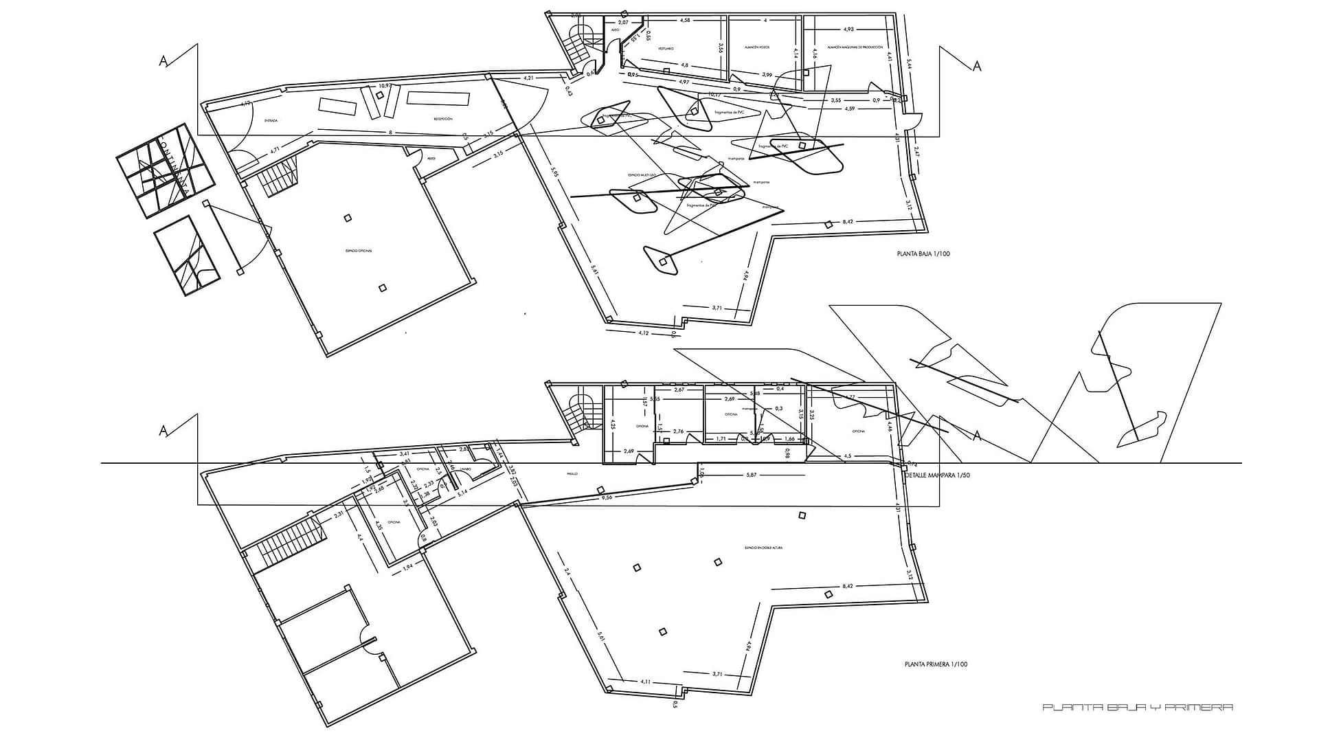
Continental Madrid is a visionary office project designed between 1999 and 2000.Located in Madrid’s “El Pasillo Verde” district, this 560 m² loft space serves as the Madrid headquarters for Continental.The design transforms a former garage into a luminous workspace, utilizing reflective white surfaces and pearlescent tones to create an environment where light and space interact dynamically.VISIONARY-
The project is characterized by a narrow, double-height entrance area that functions as a representative space, featuring glass openings that allow for visibility without compromising privacy.A two-level structure houses operational and technical offices, connected by a walkway with irregularly shaped windows that facilitate communication while maintaining discretion.The central double-height area, punctuated by pillars of varying thicknesses, is designed for flexible use, including the assembly of mobile scenarios and scenographies.
Color and flooring design play a crucial role in defining the spatial organization.A reflective, glossy white with warm or cool pigments is employed, while the entrance floor features a collage map with natural stone inlays, suggesting hypothetical paths and pauses.This approach treats the interior as an exterior space, emphasizing the fluidity and adaptability of the environment.
Credits
Location: Madrid
Type: Office
Year: 1999/2000
Architect: Cesare Battelli
Floor composition: Claudia Bonollo
Photographer: Luis Asins
This website uses cookies to improve your experience. We'll assume you're ok with this, but you can opt-out if you wish. Cookie settingsaccept
Privacy & Cookies Policy
Privacy Overview
This website uses cookies to improve your experience while you navigate through the website. Out of these cookies, the cookies that are categorized as necessary are stored on your browser as they are essential for the working of basic functionalities of the website. We also use third-party cookies that help us analyze and understand how you use this website. These cookies will be stored in your browser only with your consent. You also have the option to opt-out of these cookies. But opting out of some of these cookies may have an effect on your browsing experience.
Necessary cookies are absolutely essential for the website to function properly. This category only includes cookies that ensures basic functionalities and security features of the website. These cookies do not store any personal information.
Any cookies that may not be particularly necessary for the website to function and is used specifically to collect user personal data via analytics, ads, other embedded contents are termed as non-necessary cookies. It is mandatory to procure user consent prior to running these cookies on your website.